Bilocale in vendita

Piumazzo, Via Saffi
€ 258.000
2 locali 2 locali
96 Mq 96 Mq
1 bagno 1 bagno

Bilocale in vendita

Piumazzo, Via Saffi

Descrizione annuncio

Rif. TB2 Castelfranco Emilia (Piumazzo)

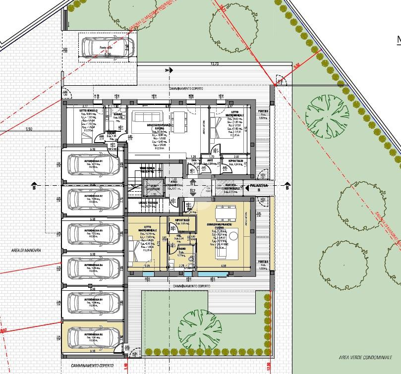
L'agenzia Immobiliare Tecnocasa di Castselfranco Emilia, propone in vendita a Piumazzo, comodo al centro del Paese e a tutti i suoi servizi un complesso di nuova costruzione che si svilupperà in zona centrale e sarà dotato di un ampio parcheggio pubblico.

Ogni unità immobiliare avrà compresa nel prezzo una autorimessa al piano terra ed un posto auto in proprietà.

Nello specifico si tratta di due palazzine speculari con soluzioni al piano terra con giardino esclusivo, ingresso indipendente e garage annesso all’immobile.

L’immobile si svilupperà su tre piani fuori terra.

Al secondo ed ultimo piano saranno disponibili semi attici con ampio terrazzo abitabile loggiato.

La stessa tipologia è disponibile al primo piano.

Ogni unità abitativa dispone di un impianto fotovoltaico esclusivo di 3 Kw.

Gli immobili sono serviti da ascensore e potranno essere personalizzati in tutte le finiture interne.

Dotati di riscaldamento a pavimento, predisposizione dell’impianto di raffrescamento autonomo, impianto fotovoltaico esclusivo di 3 kw, infissi triplo vetro, zanzariere, tapparelle frangisole motorizzate e tutte le finiture di un immobile in classe A e di impronta moderna.

Per fissare un’appuntamennto o per avere maggiori informazioni potete contattarci via mail al seguente indirizzo di posta elettronica o al seguente numero di telefono fisso e whatsapp 059.92.77.65


Se decidi di vendere il TUO immobile con NOI, in esclusiva, tra i nostri servizi offriamo GRATUITAMENTE:


Valutazione del reale prezzo di mercato con TecnoValore: software esclusivo in dotazione alle agenzie del GRUPPO che ci supporta nella definizione del prezzo degli immobili, grazie all'applicazione di metodologie statistiche che elaborano i dati su compravendite effettuate nella zona di interesse.

Mostra tutto

Nelle vicinanze

Trasporto pubblico Trasporto pubblico
Villa Faloppie
Villa Faloppie
3,0 Km
Ricariche auto elettriche Ricariche auto elettriche
EnerMia Coop Piumazzo
340 m
Scuole Scuole
Scuole
530 m
Scuole Medie SanCesario
2,8 Km
Bar Bar
Bar
2,6 Km
Mostra tutto

Caratteristiche

Rif.:
61181424
Piano:
Terra con giardino di 2 con ascensore
Totale piani:
2
Box:
1
Posti auto:
1
Camere da letto:
1
Mostra tutto
Prezzo Prezzo
€ 258.000
Rata mutuo Rata mutuo
€ 1.225 / mese
Proponi il tuo prezzoProponi il tuo prezzo

Classe Energetica

A4
A4
A4
A4
A4
A4
A4
A4
A4
EP invernale del fabbricato:
EP estiva del fabbricato:
Anno di costruzione:
2026
Riscaldamento:
Autonomo
Tipo impianto:
A pavimento
Tipo alimentazione:
Altro

Ti interessa visionare l'immobile?

Fissa un appuntamento  Fissa un appuntamento

Richiedi informazioni

Clicca su Leggi per aprire l'informativa
* Questi campi sono obbligatori

Calcola il tuo mutuo

Semplice e senza impegno
Anticipo

( % )
Mutuo

( % )

pochi semplici passi

inserisci i tuoi dati
Questionario completato
Grazie per aver richiesto un appuntamento senza impegno con un nostro Consulente del Credito e Assicurativo.

Hai inserito correttamente tutti i dati necessari e a breve riceverai una e-mail con un link da convalidare per inviare i tuoi dati.
Affiliato
Eticasa Srl
Corso Dei Martiri, 120 41013 Castelfranco Emilia (MO)

Il nostro staff


  • Italo Ancona
    Responsabile

  • Beatrice Roccia
    Affiliata
Corso Dei Martiri, 120 41013 Castelfranco Emilia (MO)
Zona: Castelfranco Emilia-Manzolino-Panzano-Gaggio-San Cesario sul Panaro
Mostra su mappa
Orari: Dal lunedì al venerdì dalle 09.00 alle 13.00 e dalle 15.00 alle 20.00. Il sabato dalle 09.00 alle 13.00 e dalle 15.00 alle 18.00. Domenica su appuntamento
Affiliato
Eticasa Srl
Corso Dei Martiri, 120 41013 Castelfranco Emilia (MO)

2026 Tecnocasa Franchising S.p.A. - P. IVA 08365160152 - Via Monte Bianco 60/A 20089 Rozzano (MI). Ogni agenzia ha un proprio titolare ed è autonoma. Privacy policy | Policy utilizzo | Cookie policy