Villa singola in vendita

Castelfranco Emilia, Via per Panzano - Pioppa
€ 420.000
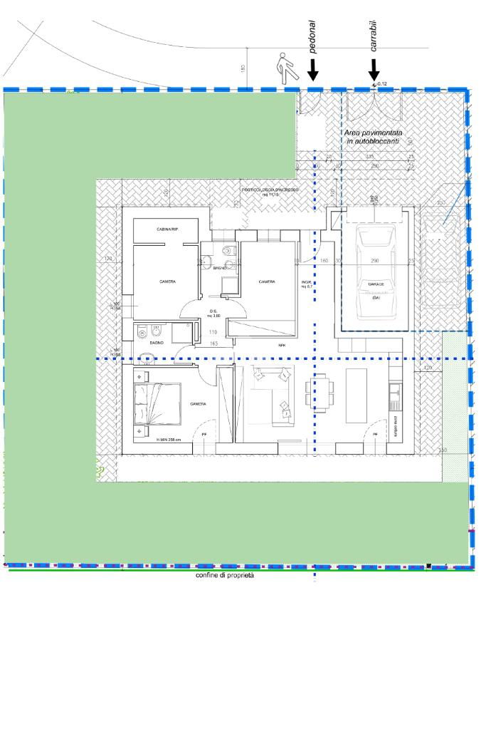
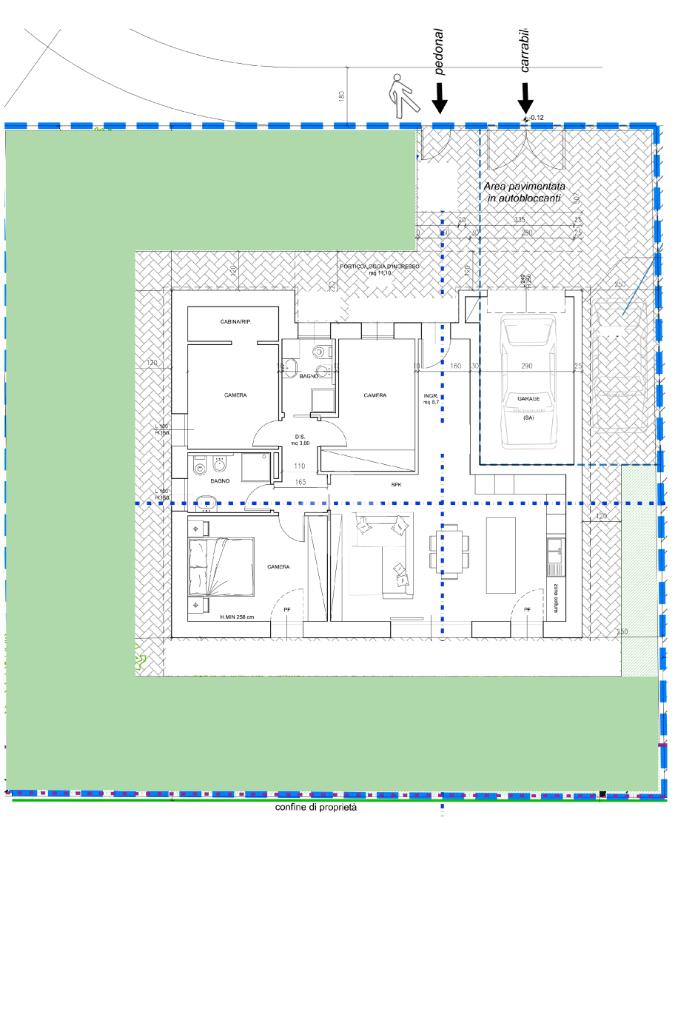
4 locali 4 locali
165 Mq 165 Mq
2 bagni 2 bagni

Villa singola in vendita

Castelfranco Emilia, Via per Panzano - Pioppa

Descrizione annuncio

- Castelfranco Emilia (ZONA PIOPPA)

Vivi il sogno di una casa indipendente tutta su un piano

Se cerchi libertà, comfort e indipendenza, questa è la soluzione che fa per te: abitazione libera su 4 lati, senza spese condominiali, con giardino privato e spazi pensati per vivere al meglio ogni giorno.

Zona Pioppa di Castelfranco – quartiere residenziale tranquillo, immerso nel verde e circondato da ville monofamiliari.

Caratteristiche principali:

Ingresso su ampia sala con angolo cottura

Tre camere da letto spaziose

Due bagni moderni

Garage di proprietà con basculante sezionale motorizzato

Comfort ed efficienza:

Serramenti in PVC ad alto rendimento termico

Riscaldamento a pavimento con pompa di calore

Pannelli fotovoltaici da 1,5 kW

VMC (ventilazione meccanica controllata) in ogni ambiente

Porta blindata e videocitofono

Un grande vantaggio: ogni ambiente e ogni dettaglio della casa può essere personalizzato secondo il tuo gusto, con la possibilità di scegliere finiture, pavimenti e rivestimenti.

Una casa pensata per chi desidera indipendenza, risparmio energetico e qualità della vita. Perfetta per chi sogna di abitare in un ambiente moderno, sicuro e circondato dal verde, senza rinunciare alle comodità di essere a pochi minuti dal centro.

Tempi di consegna 12/14 mesi dalla prenotazione.

Per maggiori informazioni o per prenotare una visita, contattaci allo 059.92.77.65 oppure scrivi a .

Mostra tutto

Nelle vicinanze

Trasporto pubblico Trasporto pubblico
stazione di Castelfranco Emilia
stazione di Castelfranco Emilia
2,0 Km
Castelfranco E. Stazione
Castelfranco E. Stazione
2,0 Km
Castelfranco E. Circondaria Nord
Castelfranco E. Circondaria Nord
2,3 Km
Ricariche auto elettriche Ricariche auto elettriche
LIDL Castelfranco Emilia
2,0 Km
EnerMia Stazione di Castelfranco Emilia
2,0 Km
EnerMia Municipio Castelfranco Emilia
2,1 Km
EnerMia Cimitero Monumentale
2,2 Km
Scuole Scuole
Scuola Elementare Marconi
2,1 Km
Istituto superiore "Lazzaro Spallanzani"
2,7 Km
Guinizzelli
2,8 Km
Istituto "L. Spallanzani"
2,8 Km
Scuole
2,8 Km
Farmacia Farmacia
Farmacia
2,4 Km
Ospedali Ospedali
Ospedale Casa della Salute Regina Margherita
1,9 Km
Casa della salute "Regina Margherita"
2,0 Km
Supermercati Supermercati
Conad
2,2 Km
Centro le Magnolie
2,4 Km
Negozi Negozi
Europa-Est (Romania,Republica Moldova,Ucraina,Polonia,Rusia)
2,2 Km
Famila
2,9 Km
Globo
3,0 Km
Bar Bar
Bar
2,0 Km
Ristoranti Ristoranti
Trattoria da Bollo
910 m
Osteria Vecchio Mulino
2,8 Km
Mostra tutto

Caratteristiche

Rif.:
61110729
Piano:
Basso di 1
Totale piani:
1
Box:
1
Posti auto:
1
Camere da letto:
3
Mostra tutto
Prezzo Prezzo
€ 420.000
Rata mutuo Rata mutuo
€ 1.979 / mese
Spese annue Spese annue
€ 0
Proponi il tuo prezzoProponi il tuo prezzo

Altre caratteristiche

Descrizione dei locali
Cucina non abitabile

Classe Energetica

A4
A4
A4
A4
A4
A4
A4
A4
A4
EP invernale del fabbricato:
EP estiva del fabbricato:
Anno di costruzione:
2026
Riscaldamento:
Autonomo
Tipo impianto:
A pavimento
Tipo alimentazione:
Altro

Ti interessa visionare l'immobile?

Fissa un appuntamento  Fissa un appuntamento

Richiedi informazioni

Clicca su Leggi per aprire l'informativa
* Questi campi sono obbligatori

Calcola il tuo mutuo

Semplice e senza impegno
Anticipo

( % )
Mutuo

( % )

pochi semplici passi

inserisci i tuoi dati
Questionario completato
Grazie per aver richiesto un appuntamento senza impegno con un nostro Consulente del Credito e Assicurativo.

Hai inserito correttamente tutti i dati necessari e a breve riceverai una e-mail con un link da convalidare per inviare i tuoi dati.
Affiliato
Eticasa Srl
Corso Dei Martiri, 120 41013 Castelfranco Emilia (MO)

Il nostro staff


  • Italo Ancona
    Responsabile

  • Beatrice Roccia
    Affiliata
Corso Dei Martiri, 120 41013 Castelfranco Emilia (MO)
Zona: Castelfranco Emilia-Manzolino-Panzano-Gaggio-San Cesario sul Panaro
Mostra su mappa
Orari: Dal lunedì al venerdì dalle 09.00 alle 13.00 e dalle 15.00 alle 20.00. Il sabato dalle 09.00 alle 13.00 e dalle 15.00 alle 18.00. Domenica su appuntamento
Affiliato
Eticasa Srl
Corso Dei Martiri, 120 41013 Castelfranco Emilia (MO)

2026 Tecnocasa Franchising S.p.A. - P. IVA 08365160152 - Via Monte Bianco 60/A 20089 Rozzano (MI). Ogni agenzia ha un proprio titolare ed è autonoma. Privacy policy | Policy utilizzo | Cookie policy