Trilocale in vendita

Castelfranco Emilia, Via Claudia - Panzano
€ 205.000
3 locali 3 locali
95 Mq 95 Mq
1 bagno 1 bagno

Trilocale in vendita

Castelfranco Emilia, Via Claudia - Panzano

Descrizione annuncio

Rif. 778 Castelfranco Emilia (Panzano)

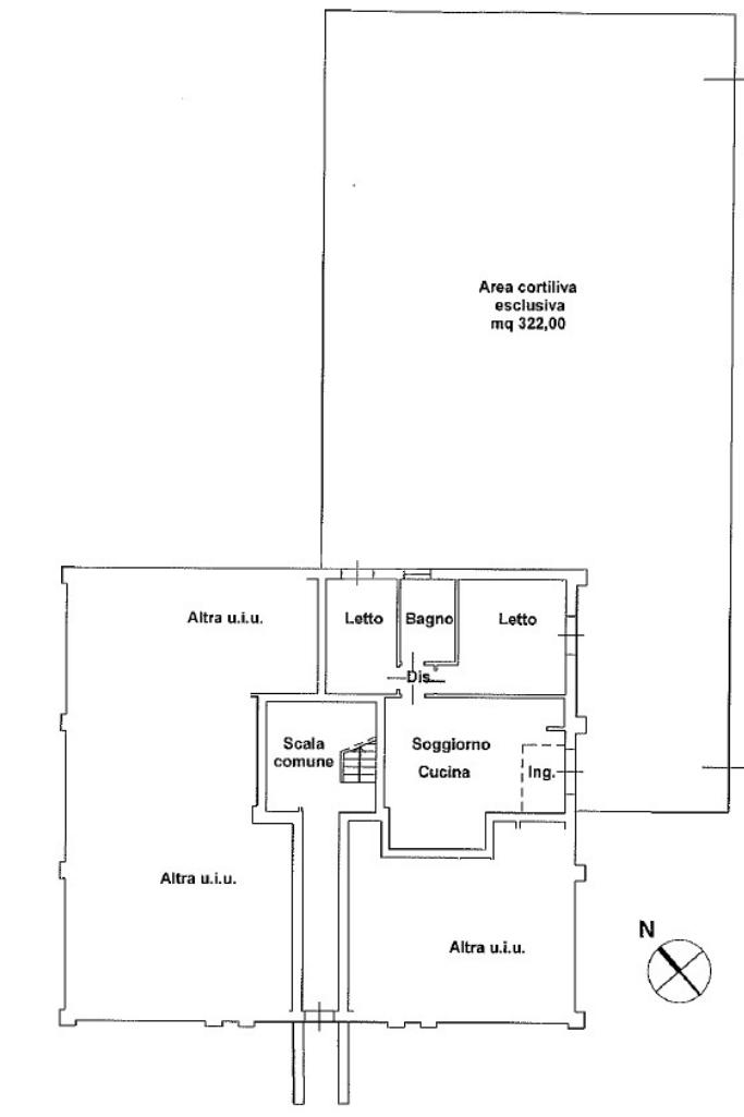
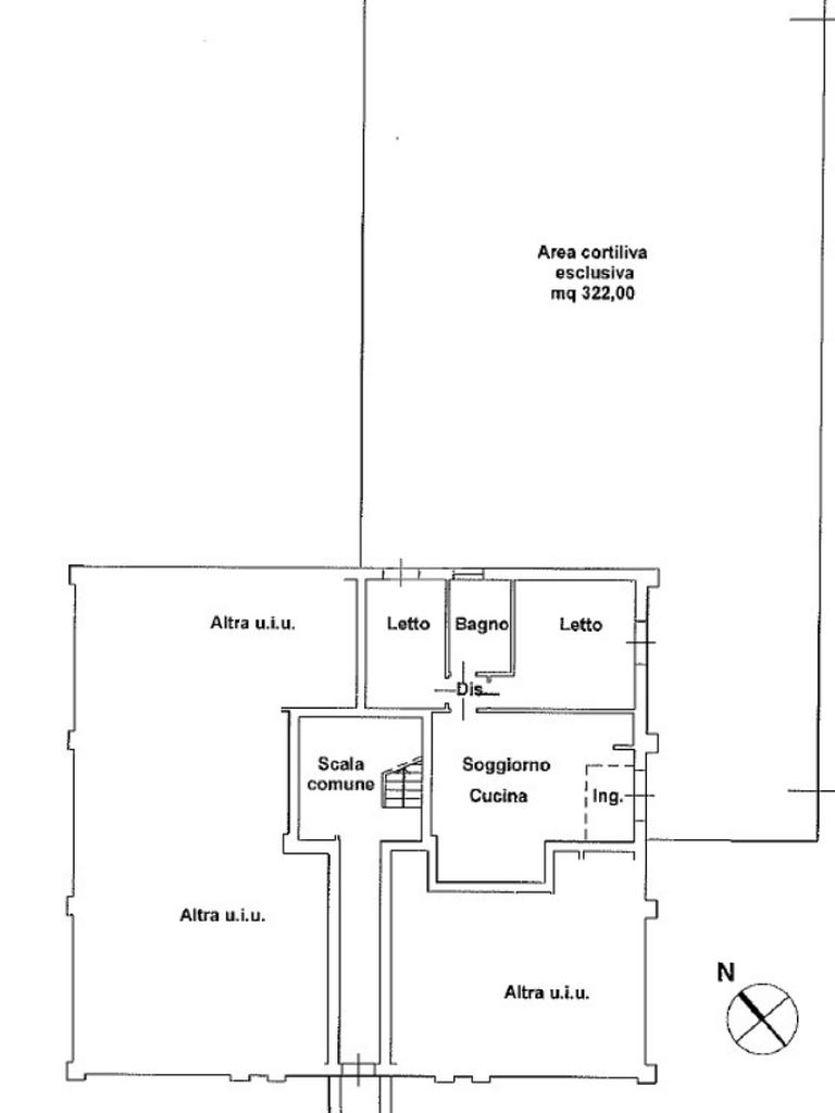
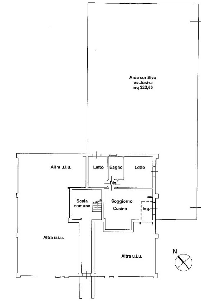
In un contesto tranquillo e riservato di poche unità abitative, ti presentiamo un appartamento al piano terra con ingresso indipendente che unisce comfort, privacy e uno splendido spazio esterno tutto da vivere.

L’ingresso si apre su un accogliente e luminoso soggiorno con cucina a vista, perfetto per condividere momenti di convivialità. Un comodo disimpegno conduce alla zona notte, composta da una spaziosa camera matrimoniale, una cameretta versatile (ideale come studio o stanza per i più piccoli) e un ampio bagno finestrato con doccia, recentemente valorizzato dalla sostituzione della rubinetteria e dei sanitari nel 2025.

Il vero punto di forza? Un magnifico giardino privato di ben 320 mq: uno spazio esclusivo dove rilassarsi, organizzare cene all’aperto, far giocare i bambini o accogliere i tuoi amici a quattro zampe. Il giardino è dotato di irrigazione automatizzata con centralina collegata all’applicazione e sono inoltre presenti un pergolato ed una casetta di legno ideale per sistemare gli attrezzi da giardino.

All’interno della proprietà è inoltre possibile parcheggiare comodamente due auto.

Dotato di riscaldamento autonomo e caratterizzato da basse spese di gestione, questo appartamento rappresenta la soluzione ideale per chi desidera indipendenza, tranquillità e qualità della vita, senza rinunciare alla praticità.

Una casa pronta da vivere, capace di farti sentire subito a casa.

Per qualsiasi informazione o per fissare un appuntamento per visionare l'immobile contatti il numero 059.92.77.65 o mandi una mail al seguente indirizzo di posta elettronica

Mostra tutto

Nelle vicinanze

Trasporto pubblico Trasporto pubblico
Bagazzano Capolinea
Bagazzano Capolinea
2,8 Km
Ricariche auto elettriche Ricariche auto elettriche
LIDL Castelfranco Emilia
2,1 Km
EnerMia Gaggio
2,4 Km
Ospedali Ospedali
Ospedale Casa della Salute Regina Margherita
2,8 Km
Casa della salute "Regina Margherita"
2,8 Km
Ristoranti Ristoranti
Trattoria da Bollo
370 m
La Roda
2,9 Km
Mostra tutto

Caratteristiche

Rif.:
61203542
Piano:
Terra di 2
Totale piani:
2
Posti auto:
1
Camere da letto:
2
Arredamento:
Parziale
Mostra tutto
Prezzo Prezzo
€ 205.000
Rata mutuo Rata mutuo
€ 973 / mese
Proponi il tuo prezzoProponi il tuo prezzo

Classe Energetica

C
C
C
C
C
C
C
C
C
EP globale non rinnovabile:
126.41 kW h/m² anno
EP invernale del fabbricato:
EP estiva del fabbricato:
Anno di costruzione:
2010
Riscaldamento:
Autonomo
Tipo impianto:
A pavimento
Tipo alimentazione:
Metano

Ti interessa visionare l'immobile?

Fissa un appuntamento  Fissa un appuntamento

Richiedi informazioni

Clicca su Leggi per aprire l'informativa
* Questi campi sono obbligatori

Calcola il tuo mutuo

Semplice e senza impegno
Anticipo

( % )
Mutuo

( % )

pochi semplici passi

inserisci i tuoi dati
Questionario completato
Grazie per aver richiesto un appuntamento senza impegno con un nostro Consulente del Credito e Assicurativo.

Hai inserito correttamente tutti i dati necessari e a breve riceverai una e-mail con un link da convalidare per inviare i tuoi dati.
Affiliato
Eticasa Srl
Corso Dei Martiri, 120 41013 Castelfranco Emilia (MO)

Il nostro staff


  • Italo Ancona
    Responsabile

  • Beatrice Roccia
    Affiliata
Corso Dei Martiri, 120 41013 Castelfranco Emilia (MO)
Zona: Castelfranco Emilia-Manzolino-Panzano-Gaggio-San Cesario sul Panaro
Mostra su mappa
Orari: Dal lunedì al venerdì dalle 09.00 alle 13.00 e dalle 15.00 alle 20.00. Il sabato dalle 09.00 alle 13.00 e dalle 15.00 alle 18.00. Domenica su appuntamento
Affiliato
Eticasa Srl
Corso Dei Martiri, 120 41013 Castelfranco Emilia (MO)

2026 Tecnocasa Franchising S.p.A. - P. IVA 08365160152 - Via Monte Bianco 60/A 20089 Rozzano (MI). Ogni agenzia ha un proprio titolare ed è autonoma. Privacy policy | Policy utilizzo | Cookie policy