Trilocale in vendita

Castelfranco Emilia, Via Don Luigi Roncagli
€ 144.000
3 locali 3 locali
80 Mq 80 Mq
1 bagno 1 bagno

Trilocale in vendita

Castelfranco Emilia, Via Don Luigi Roncagli

Descrizione annuncio

Rif: 768 – Castelfranco Emilia (zona centro)

La Tecnocasa di Castelfranco Emilia, sita in corso Martiri n°120, propone In zona centrale, comoda a tutti i servizi, appartamento in ottime condizioni inserito in contesto riservato e ben curato, servito da ascensore e dotato di impianti autonomi.

La posizione rappresenta un vero valore aggiunto: negozi, supermercati, scuole, farmacia, mezzi pubblici e tutti i principali servizi sono facilmente raggiungibili a piedi. Una soluzione ideale per chi desidera vivere il centro.

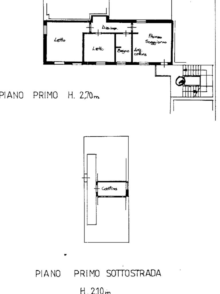
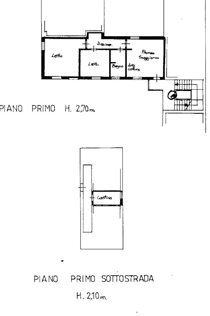
L’immobile si compone di sala con angolo cottura, disimpegno, due camere da letto e bagno.

L’esposizione sud-ovest garantisce un’ottima luminosità durante tutta la giornata, rendendo gli spazi ancora più accoglienti.

Completa la proprietà una cantina, perfetta come comodo spazio accessorio.

Per maggiori informazioni o per prenotare una visita, contattaci allo 059.92.77.65 oppure scrivi a .

Mostra tutto

Nelle vicinanze

Trasporto pubblico Trasporto pubblico
stazione di Castelfranco Emilia
stazione di Castelfranco Emilia
570 m
Castelfranco E. Circondaria Sud
Castelfranco E. Circondaria Sud
460 m
Castelfranco E. Circondaria Nord
Castelfranco E. Circondaria Nord
490 m
Ricariche auto elettriche Ricariche auto elettriche
EnerMia Municipio Castelfranco Emilia
270 m
EnerMia Cimitero Monumentale
470 m
EnerMia Stazione di Castelfranco Emilia
550 m
LIDL Castelfranco Emilia
1,7 Km
Scuole Scuole
Scuola Elementare Marconi
340 m
Istituto superiore "Lazzaro Spallanzani"
580 m
Istituto "L. Spallanzani"
620 m
Guinizzelli
710 m
Scuole
810 m
Farmacia Farmacia
Farmacia
190 m
Ospedali Ospedali
Casa della salute "Regina Margherita"
340 m
Ospedale Casa della Salute Regina Margherita
350 m
Supermercati Supermercati
Centro le Magnolie
170 m
Conad
240 m
Negozi Negozi
Europa-Est (Romania,Republica Moldova,Ucraina,Polonia,Rusia)
150 m
Famila
1,2 Km
Globo
1,4 Km
Bar Bar
Bar
240 m
Bar
2,9 Km
Ristoranti Ristoranti
Simply
1,3 Km
La Roda
2,7 Km
Laghi Balena
2,8 Km
Trattoria da Bollo
2,9 Km
Mostra tutto

Caratteristiche

Rif.:
61176867
Piano:
1 di 2 con ascensore (Piano basso)
Camere da letto:
2
Arredamento:
Parziale
Condizionamento:
Autonomo
Ascensore:
Mostra tutto
Prezzo Prezzo
€ 144.000
Rata mutuo Rata mutuo
€ 668 / mese
Spese annue Spese annue
€ 950
Proponi il tuo prezzoProponi il tuo prezzo

Altre caratteristiche

Classe Energetica

Questo immobile è esente da classe energetica
Anno di costruzione:
1997
Riscaldamento:
Autonomo
Tipo impianto:
A radiatori
Tipo alimentazione:
Metano

Ti interessa visionare l'immobile?

Fissa un appuntamento  Fissa un appuntamento

Richiedi informazioni

Clicca su Leggi per aprire l'informativa
* Questi campi sono obbligatori

Calcola il tuo mutuo

Semplice e senza impegno
Anticipo

( % )
Mutuo

( % )

pochi semplici passi

inserisci i tuoi dati
Questionario completato
Grazie per aver richiesto un appuntamento senza impegno con un nostro Consulente del Credito e Assicurativo.

Hai inserito correttamente tutti i dati necessari e a breve riceverai una e-mail con un link da convalidare per inviare i tuoi dati.
Affiliato
Eticasa Srl
Corso Dei Martiri, 120 41013 Castelfranco Emilia (MO)

Il nostro staff


  • Italo Ancona
    Responsabile

  • Beatrice Roccia
    Affiliata
Corso Dei Martiri, 120 41013 Castelfranco Emilia (MO)
Zona: Castelfranco Emilia-Manzolino-Panzano-Gaggio-San Cesario sul Panaro
Mostra su mappa
Orari: Dal lunedì al venerdì dalle 09.00 alle 13.00 e dalle 15.00 alle 20.00. Il sabato dalle 09.00 alle 13.00 e dalle 15.00 alle 18.00. Domenica su appuntamento
Affiliato
Eticasa Srl
Corso Dei Martiri, 120 41013 Castelfranco Emilia (MO)

2026 Tecnocasa Franchising S.p.A. - P. IVA 08365160152 - Via Monte Bianco 60/A 20089 Rozzano (MI). Ogni agenzia ha un proprio titolare ed è autonoma. Privacy policy | Policy utilizzo | Cookie policy