Trilocale in vendita

Castelfranco Emilia, Via Peschiera
€ 250.000
3 locali 3 locali
90 Mq 90 Mq
1 bagno 1 bagno

Trilocale in vendita

Castelfranco Emilia, Via Peschiera

Descrizione annuncio

Rif. BC7 – Castelfranco Emilia (Zona Corona)

La Tecnocasa di Castelfranco Emilia, con sede in Corso Martiri 120, propone in vendita appartamento in palazzina di nuova costruzione, situata in una zona comoda a tutti i servizi.

Il fabbricato è composto da 13 unità abitative.
Descrizione dell’immobile
L’appartamento, posto al secondo piano è sviluppato su un unico livello, ed è composto da: ingresso su soggiorno con angolo cottura, disimpegno, due camere, bagno, ripostoglio e balcone.

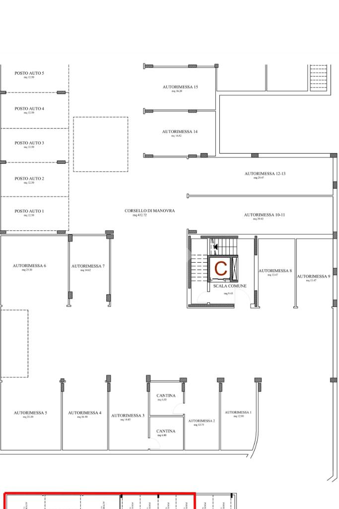
Completa la proprietà un garage.

Possibilità di acquistare cantine e posti auto


Caratteristiche costruttive e tecniche
La nuova costruzione garantirà alte prestazioni energetiche e sarà completamente NO GAS, per un maggiore risparmio e un ridotto impatto ambientale.

L’immobile sarà dotato di: 3 kW di impianto fotovoltaico con 5 kW di accumulo, riscaldamento autonomo, infissi in PVC con vetro a taglio termico e comfort acustico, tapparelle in alluminio coibentato e motorizzate, videocitofono, portoncino d’ingresso blindato con cilindro europeo, possibilità di personalizzare pavimenti e rivestimenti da capitolato.
specifiche Impianto di riscaldamento e acqua calda:
Riscaldamento, raffrescamento e acqua calda sanitaria saranno gestiti da un sistema all-in-one, composto da un’unità interna e una esterna, che garantirà comfort sia in estate che in ogni bagno sarà presente un termoarredo elettrico con termostato dedicato.

La climatizzazione nelle zone giorno e notte sarà canalizzata, con regolazione autonoma della temperatura in ciascun ambiente.

L’immobile sarà inoltre dotato di VMC (ventilazione meccanica controllata) certificata, per un corretto e continuo ricambio d’aria.


Consegna prevista - Fine 2026


Informazioni e contatti:
Per maggiori dettagli sul capitolato o sulla costruzione è possibile contattare 059.92.77.65 -

Mostra tutto

Nelle vicinanze

Trasporto pubblico Trasporto pubblico
stazione di Castelfranco Emilia
stazione di Castelfranco Emilia
980 m
Castelfranco E. Peschiera
Castelfranco E. Peschiera
150 m
Castelfranco E. Circondaria Sud
Castelfranco E. Circondaria Sud
710 m
Ricariche auto elettriche Ricariche auto elettriche
EnerMia Cimitero Monumentale
840 m
EnerMia Stazione di Castelfranco Emilia
970 m
EnerMia Municipio Castelfranco Emilia
1,1 Km
LIDL Castelfranco Emilia
2,9 Km
Scuole Scuole
Scuole
390 m
Guinizzelli
490 m
Istituto "L. Spallanzani"
680 m
Istituto superiore "Lazzaro Spallanzani"
700 m
Scuola Elementare Marconi
1,1 Km
Farmacia Farmacia
Farmacia
1,1 Km
Ospedali Ospedali
Ospedale Casa della Salute Regina Margherita
1,5 Km
Casa della salute "Regina Margherita"
1,5 Km
Supermercati Supermercati
Conad
780 m
Centro le Magnolie
1,1 Km
Negozi Negozi
Famila
80 m
Globo
300 m
Europa-Est (Romania,Republica Moldova,Ucraina,Polonia,Rusia)
1,1 Km
Bar Bar
Bar
1,0 Km
Bar
2,9 Km
Ristoranti Ristoranti
Simply
120 m
Laghi Balena
2,7 Km
Osteria Vecchio Mulino
2,8 Km
Mostra tutto

Caratteristiche

Rif.:
61144524
Piano:
2 di 4 con ascensore (Piano medio)
Box:
1
Balconi:
1
Camere da letto:
2
Arredamento:
Assente
Mostra tutto
Prezzo Prezzo
€ 250.000
Rata mutuo Rata mutuo
€ 1.187 / mese
Spese annue Spese annue
€ 1.000
Proponi il tuo prezzoProponi il tuo prezzo

Altre caratteristiche

Descrizione dei locali
Bagno Con Finestra

Classe Energetica

A4
A4
A4
A4
A4
A4
A4
A4
A4
EP invernale del fabbricato:
EP estiva del fabbricato:
Anno di costruzione:
2026
Riscaldamento:
Autonomo
Tipo impianto:
Ad aria
Tipo alimentazione:
Altro

Ti interessa visionare l'immobile?

Fissa un appuntamento  Fissa un appuntamento

Richiedi informazioni

Clicca su Leggi per aprire l'informativa
* Questi campi sono obbligatori

Calcola il tuo mutuo

Semplice e senza impegno
Anticipo

( % )
Mutuo

( % )

pochi semplici passi

inserisci i tuoi dati
Questionario completato
Grazie per aver richiesto un appuntamento senza impegno con un nostro Consulente del Credito e Assicurativo.

Hai inserito correttamente tutti i dati necessari e a breve riceverai una e-mail con un link da convalidare per inviare i tuoi dati.
Affiliato
Eticasa Srl
Corso Dei Martiri, 120 41013 Castelfranco Emilia (MO)

Il nostro staff


  • Italo Ancona
    Responsabile

  • Beatrice Roccia
    Affiliata
Corso Dei Martiri, 120 41013 Castelfranco Emilia (MO)
Zona: Castelfranco Emilia-Manzolino-Panzano-Gaggio-San Cesario sul Panaro
Mostra su mappa
Orari: Dal lunedì al venerdì dalle 09.00 alle 13.00 e dalle 15.00 alle 20.00. Il sabato dalle 09.00 alle 13.00 e dalle 15.00 alle 18.00. Domenica su appuntamento
Affiliato
Eticasa Srl
Corso Dei Martiri, 120 41013 Castelfranco Emilia (MO)

2026 Tecnocasa Franchising S.p.A. - P. IVA 08365160152 - Via Monte Bianco 60/A 20089 Rozzano (MI). Ogni agenzia ha un proprio titolare ed è autonoma. Privacy policy | Policy utilizzo | Cookie policy