5 locali in vendita

Castelfranco Emilia, Via Ripa Inferiore
€ 230.000
Prezzo aggiornato
5 locali 5 locali
220 Mq 220 Mq
2 bagni 2 bagni

5 locali in vendita

Castelfranco Emilia, Via Ripa Inferiore

Descrizione annuncio

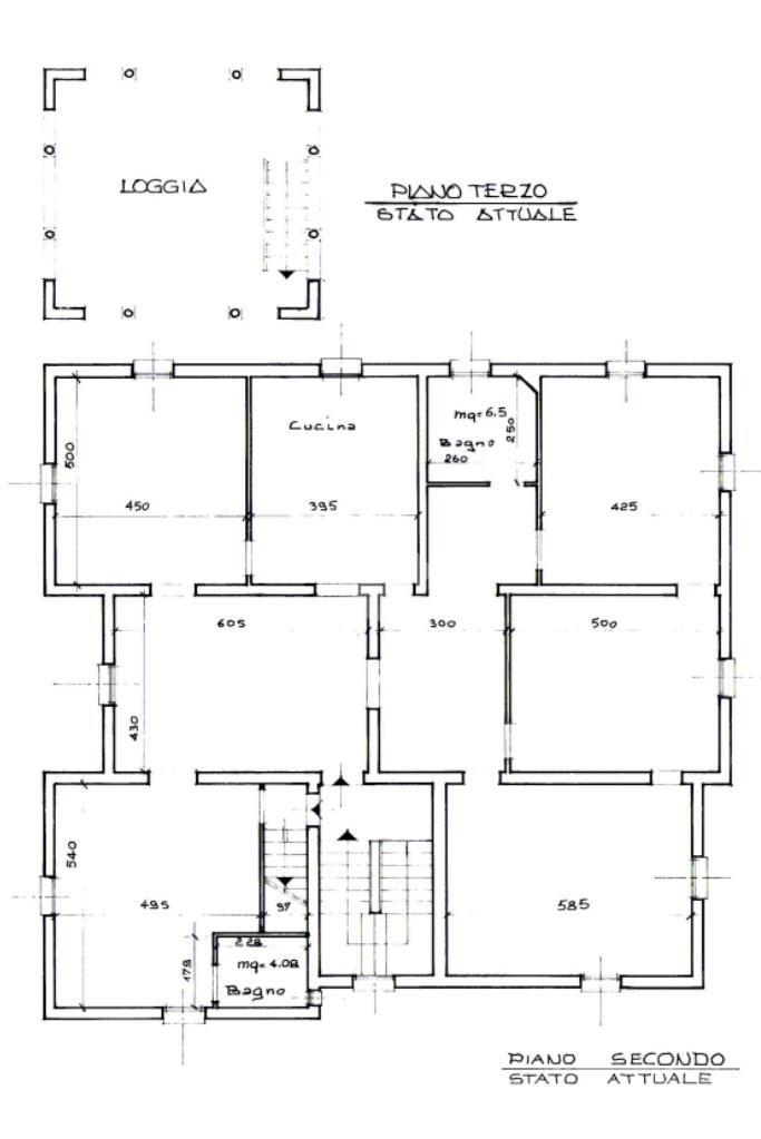
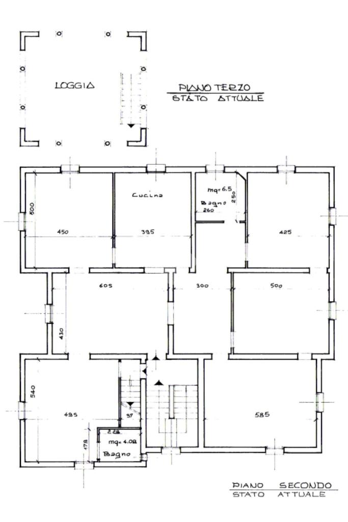
Appartamento al secondo piano con parco privato di 1300mq

Rif:496 Secondo - Castelfranco Emilia (Centro)

La Tecnocasa di Castelfranco Emilia, sita in corso Martiri n°120, propone in vendita in zona centrale, appartamento in villa trifamiliare dalle ampie metrature con parco privato di 1300mq.

La Soluzione è strutturata con tre appartamenti di circa 220mq a piano.

Il secondo piano è composto da: ingresso, sala, tinello, cucina abitabile, quattro camere da letto, tre bagni e ampia torretta ad uso terrazzo loggiato di 32mq con ampia vista sul centro del paese.

Completa la proprietà per ogni immobile una cantina al piano semi interrato.

Possibilità di parcheggiare più auto nel cortile interno.

Doppio ingresso carrabile e pedonale.

Per qualsiasi informazione o per fissare un appuntamento per visionare l'immobile contatti il numero 059.92. 77.65 o mandi una mail.
Mostra tutto

Nelle vicinanze

Trasporto pubblico Trasporto pubblico
stazione di Castelfranco Emilia
stazione di Castelfranco Emilia
320 m
Castelfranco E. Stazione
Castelfranco E. Stazione
290 m
Castelfranco E. Circondaria Nord
Castelfranco E. Circondaria Nord
330 m
Ricariche auto elettriche Ricariche auto elettriche
EnerMia Municipio Castelfranco Emilia
20 m
EnerMia Cimitero Monumentale
260 m
EnerMia Stazione di Castelfranco Emilia
300 m
LIDL Castelfranco Emilia
1,9 Km
Scuole Scuole
Scuola Elementare Marconi
90 m
Istituto superiore "Lazzaro Spallanzani"
620 m
Istituto "L. Spallanzani"
660 m
Guinizzelli
670 m
Scuole
760 m
Farmacia Farmacia
Farmacia
370 m
Ospedali Ospedali
Ospedale Casa della Salute Regina Margherita
400 m
Casa della salute "Regina Margherita"
410 m
Supermercati Supermercati
Conad
280 m
Centro le Magnolie
360 m
Negozi Negozi
Europa-Est (Romania,Republica Moldova,Ucraina,Polonia,Rusia)
120 m
Famila
1,0 Km
Globo
1,2 Km
Bar Bar
Bar
310 m
Ristoranti Ristoranti
Simply
1,2 Km
La Roda
2,8 Km
Trattoria da Bollo
2,9 Km
Osteria Vecchio Mulino
2,9 Km
Laghi Balena
3,0 Km
Mostra tutto

Caratteristiche

Rif.:
61139125
Piano:
2 di 3 (ultimo Piano)
Posti auto:
2
Terrazzi:
1
Camere da letto:
4
Arredamento:
Assente
Mostra tutto
Prezzo Prezzo
€ 230.000
Rata mutuo Rata mutuo
€ 1.068 / mese
Proponi il tuo prezzoProponi il tuo prezzo

Classe Energetica

G
G
G
G
G
G
G
G
G
EP invernale del fabbricato:
EP estiva del fabbricato:
Anno di costruzione:
1929
Riscaldamento:
Autonomo
Tipo impianto:
A radiatori
Tipo alimentazione:
Metano

Prezzo ridotto di €1 (8%%)

Ti interessa visionare l'immobile?

Fissa un appuntamento  Fissa un appuntamento

Richiedi informazioni

Clicca su Leggi per aprire l'informativa
* Questi campi sono obbligatori

Calcola il tuo mutuo

Semplice e senza impegno
Anticipo

( % )
Mutuo

( % )

pochi semplici passi

inserisci i tuoi dati
Questionario completato
Grazie per aver richiesto un appuntamento senza impegno con un nostro Consulente del Credito e Assicurativo.

Hai inserito correttamente tutti i dati necessari e a breve riceverai una e-mail con un link da convalidare per inviare i tuoi dati.
Affiliato
Eticasa Srl
Corso Dei Martiri, 120 41013 Castelfranco Emilia (MO)

Il nostro staff


  • Italo Ancona
    Responsabile

  • Beatrice Roccia
    Affiliata
Corso Dei Martiri, 120 41013 Castelfranco Emilia (MO)
Zona: Castelfranco Emilia-Manzolino-Panzano-Gaggio-San Cesario sul Panaro
Mostra su mappa
Orari: Dal lunedì al venerdì dalle 09.00 alle 13.00 e dalle 15.00 alle 20.00. Il sabato dalle 09.00 alle 13.00 e dalle 15.00 alle 18.00. Domenica su appuntamento
Affiliato
Eticasa Srl
Corso Dei Martiri, 120 41013 Castelfranco Emilia (MO)

2026 Tecnocasa Franchising S.p.A. - P. IVA 08365160152 - Via Monte Bianco 60/A 20089 Rozzano (MI). Ogni agenzia ha un proprio titolare ed è autonoma. Privacy policy | Policy utilizzo | Cookie policy