Trilocale in vendita

Castelfranco Emilia, Via Circondaria Nord
€ 188.000
3 locali 3 locali
105 Mq 105 Mq
1 bagno 1 bagno

Trilocale in vendita

Castelfranco Emilia, Via Circondaria Nord

Descrizione annuncio

Rif. 738 Castelfranco Emilia (Centro):

La Tecnocasa di Castelfranco Emilia sita in Corso Martiri 120 propone in vendita immobile completamente arredato.

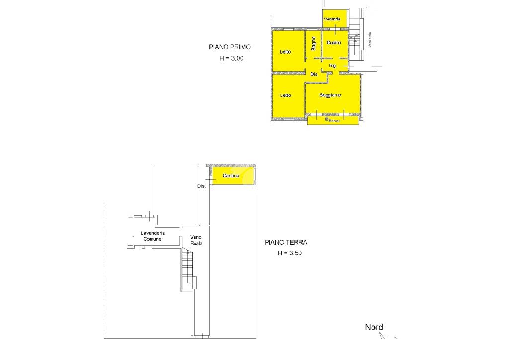
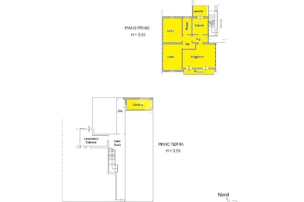
L'appartamento è posto al piano primo e si compone di ingresso, soggiorno ampio con balcone, cucina abitabile con balcone ampio e finestrato (attualmente adibito a dispensa).

Il disimpegno conduce alla zona notte dove sono presenti due ampie camere da letto matrimoniali e bagno.

Completa la proprietà cantina al piano terra.

Per fissare un appuntamento per visionare l'immobile contatti il numero 059.92.77.65 o mandi una mail al seguente indirizzo di posta elettronica

Mostra tutto

Nelle vicinanze

Trasporto pubblico Trasporto pubblico
stazione di Castelfranco Emilia
stazione di Castelfranco Emilia
290 m
Castelfranco E. Stazione
Castelfranco E. Stazione
250 m
Castelfranco E. Circondaria Nord
Castelfranco E. Circondaria Nord
390 m
Ricariche auto elettriche Ricariche auto elettriche
EnerMia Municipio Castelfranco Emilia
80 m
EnerMia Stazione di Castelfranco Emilia
270 m
EnerMia Cimitero Monumentale
290 m
LIDL Castelfranco Emilia
1,8 Km
Scuole Scuole
Scuola Elementare Marconi
80 m
Istituto superiore "Lazzaro Spallanzani"
720 m
Istituto "L. Spallanzani"
760 m
Guinizzelli
760 m
Scuole
850 m
Farmacia Farmacia
Farmacia
460 m
Ospedali Ospedali
Ospedale Casa della Salute Regina Margherita
360 m
Casa della salute "Regina Margherita"
380 m
Supermercati Supermercati
Conad
350 m
Centro le Magnolie
450 m
Negozi Negozi
Europa-Est (Romania,Republica Moldova,Ucraina,Polonia,Rusia)
210 m
Famila
1,1 Km
Globo
1,3 Km
Bar Bar
Bar
270 m
Ristoranti Ristoranti
Simply
1,2 Km
Trattoria da Bollo
2,8 Km
La Roda
2,8 Km
Osteria Vecchio Mulino
2,9 Km
Mostra tutto

Caratteristiche

Rif.:
61079097
Piano:
1 di 3 (Piano basso)
Posti auto:
1
Balconi:
2
Terrazzi:
2
Camere da letto:
2
Mostra tutto
Prezzo Prezzo
€ 188.000
Rata mutuo Rata mutuo
€ 834 / mese
Proponi il tuo prezzoProponi il tuo prezzo

Classe Energetica

G
G
G
G
G
G
G
G
G
EP globale non rinnovabile:
205.85 kW h/m² anno
EP invernale del fabbricato:
EP estiva del fabbricato:
Anno di costruzione:
1979
Riscaldamento:
Autonomo
Tipo impianto:
A radiatori
Tipo alimentazione:
Gasolio

Ti interessa visionare l'immobile?

Fissa un appuntamento  Fissa un appuntamento

Richiedi informazioni

* Questi campi sono obbligatori

Calcola il tuo mutuo

Semplice e senza impegno
Anticipo

( % )
Mutuo

( % )

pochi semplici passi

inserisci i tuoi dati
Questionario completato
Grazie per aver richiesto un appuntamento senza impegno con un nostro Consulente del Credito e Assicurativo.

Hai inserito correttamente tutti i dati necessari e a breve riceverai una e-mail con un link da convalidare per inviare i tuoi dati.
Affiliato
Eticasa Srl
Corso Dei Martiri, 120 41013 Castelfranco Emilia (MO)

Il nostro staff


  • Italo Ancona
    Responsabile

  • Beatrice Roccia
    Affiliata
Corso Dei Martiri, 120 41013 Castelfranco Emilia (MO)
Zona: Castelfranco Emilia-Manzolino-Panzano-Gaggio-San Cesario sul Panaro
Mostra su mappa
Orari: Dal lunedì al venerdì dalle 09.00 alle 13.00 e dalle 15.00 alle 20.00. Il sabato dalle 09.00 alle 13.00 e dalle 15.00 alle 18.00. Domenica su appuntamento
Affiliato
Eticasa Srl
Corso Dei Martiri, 120 41013 Castelfranco Emilia (MO)

2025 Tecnocasa Franchising S.p.A. - P. IVA 08365160152 - Via Monte Bianco 60/A 20089 Rozzano (MI). Ogni agenzia ha un proprio titolare ed è autonoma. Privacy policy | Policy utilizzo | Cookie policy